Mehrfamilienhaus mit 8 Eigentumswohnungen und Tiefgarage | Parkstraße 19 in 87439 Kempten
| WOHNUNG | ETAGE | WOHNFLÄCHE ca. | ZIMMER | KAUFPREIS | TIEFGARAGE |
|---|---|---|---|---|---|
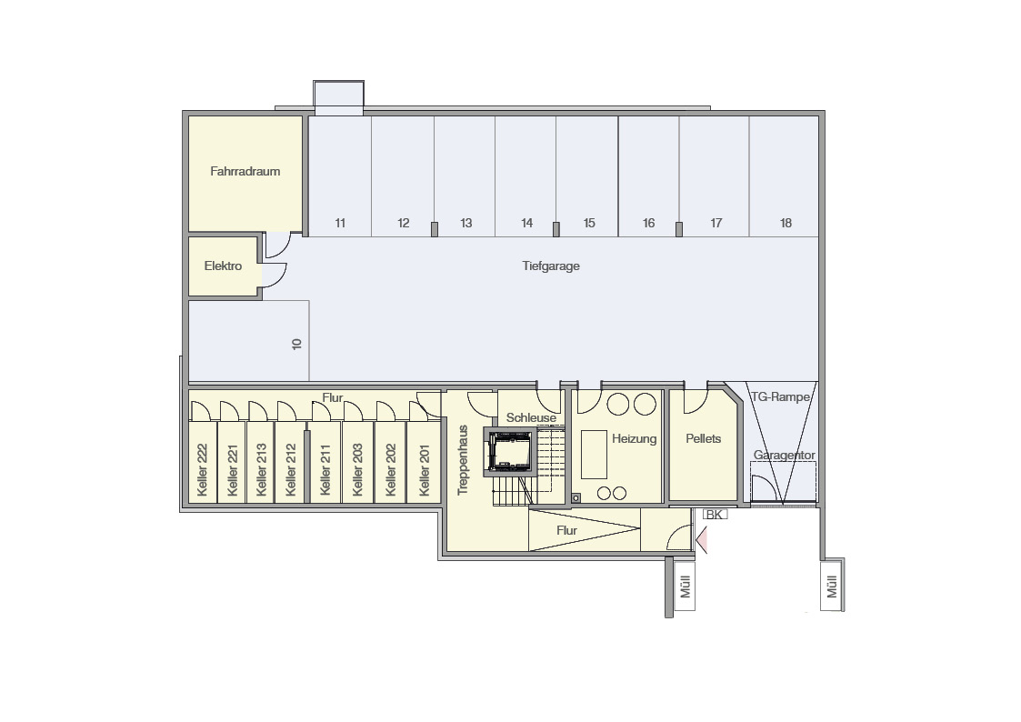
| 201 | Erdgeschoss | 46,17 m² | 2- Zimmer | Verkauft | Verkauft |
| 202 | Erdgeschoss | 87,81 m² | 3- Zimmer | 610.000 € | 28.000 € |
| 203 | Erdgeschoss | 82,10 m² | 3- Zimmer | 571.000 € | 28.000 € |
| WOHNUNG | ETAGE | WOHNFLÄCHE ca. | ZIMMER | KAUFPREIS | TIEFGARAGE |
|---|---|---|---|---|---|
| 211 | Obergeschoss | 50,32 m² | 2- Zimmer | 382.000 € | 28.000 € |
| 212 | Obergeschoss | 93,03 m² | 3- Zimmer | 696.000 € | 28.000 € |
| 213 | Obergeschoss | 89,10 m² | 3- Zimmer | 667.000 € | 28.000 € |
| WOHNUNG | ETAGE | WOHNFLÄCHE ca. | ZIMMER | KAUFPREIS | TIEFGARAGE |
|---|---|---|---|---|---|
| 221 | Dachgeschoss | 103,92 m² | 3- Zimmer | 806.000 € | 28.000 € |
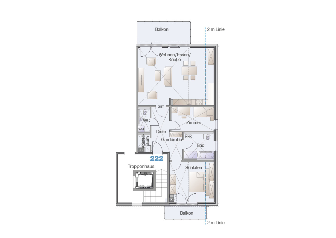
| 222 | Dachgeschoss | 99,70 m² | 3- Zimmer | 793.000 € | 28.000 € |